
ຮ່ອງໂຄງສ້າງເຫຼັກແມ່ນສ່ວນປະກອບສໍາຄັນຂອງລະບົບລະບາຍນ້ໍາທີ່ມີຄວາມສໍາຄັນຂອງອາຄານ. ຫນ້າທີ່ຕົ້ນຕໍຂອງພວກມັນແມ່ນເພື່ອເກັບນ້ໍາຝົນຈາກຫລັງຄາ, ໂດຍກົງໃນທໍ່ແນວຕັ້ງ, ແລະຈາກນັ້ນກໍ່ໃຫ້ເກີດມັນຈາກຝາດ້ານນອກຫຼືພື້ນຖານທີ່ແຊ່ໂດຍກົງ. ການອອກແບບແລະການຕິດຕັ້ງຜະລິດຕະພັນຂອງ Liweiyuan ແມ່ນມີຄຸນລັກສະນະສູງໂດຍຄວາມແຂງແຮງສູງແລະນ້ໍາຫນັກເບົາ, ຮັບປະກັນການລະບາຍແລະຄວາມທົນທານທີ່ດີ.
ຮ່ອງໂຄງສ້າງເຫຼັກແມ່ນສ່ວນປະກອບສໍາຄັນຂອງລະບົບລະບາຍນ້ໍາທີ່ມີຄວາມສໍາຄັນຂອງອາຄານ. ຫນ້າທີ່ຕົ້ນຕໍຂອງພວກມັນແມ່ນເພື່ອເກັບນ້ໍາຝົນຈາກຫລັງຄາ, ໂດຍກົງໃນທໍ່ແນວຕັ້ງ, ແລະຈາກນັ້ນກໍ່ໃຫ້ເກີດມັນຈາກຝາດ້ານນອກຫຼືພື້ນຖານທີ່ແຊ່ໂດຍກົງ. ການອອກແບບແລະການຕິດຕັ້ງຜະລິດຕະພັນຂອງ Liweiyuan ແມ່ນມີຄຸນລັກສະນະສູງໂດຍຄວາມແຂງແຮງສູງແລະນ້ໍາຫນັກເບົາ, ຮັບປະກັນການລະບາຍແລະຄວາມທົນທານທີ່ດີ.
ຮ່ອງໂຄງສ້າງຂອງ Liweiyuan ແມ່ນເຮັດດ້ວຍວັດສະດຸທີ່ທົນທົນທານແລະມີຜົນກະທົບຕໍ່ຜົນກະທົບ.
ຜະລິດຕະພັນຂອງພວກເຮົາແມ່ນອາບນ້ໍາຮ້ອນ, ສະເຫນີຄວາມຕ້ານທານການກັດກ່ອນທີ່ດີເລີດ, ມີຕົ້ນທຶນຕ່ໍາ, ແລະຊີວິດການບໍລິການຍາວນານ. ມີຢູ່ໃນຄວາມຫນາຂອງ 1.5-2.5 ມມ, ມັນເຫມາະສໍາລັບການນໍາໃຊ້ທີ່ສຸດ.
ເຮັດດ້ວຍເຫລັກສະແຕນເລດ, ຜະລິດຕະພັນນີ້ສະເຫນີຄວາມຕ້ານທານການກັດກ່ອນແລະມີຄວາມເຫມາະສົມໂດຍສະເພາະສໍາລັບສະພາບແວດລ້ອມແຄມທະເລຫລືຊຸ່ມ. ມີຄວາມຫນາຂອງ 1.0-2.0 ມມ, ມັນສະຫນອງລາຄາທີ່ສູງກວ່າແຕ່ຊີວິດການບໍລິການຍາວນານ.
ຜະລິດຕະພັນເຫຼັກທີ່ມີສີສັນຂອງພວກເຮົາແມ່ນອີງໃສ່ເຫຼັກທີ່ມີສີສັນຂອງພວກເຮົາແມ່ນອີງໃສ່ການເຄືອບທີ່ທົນທານຕໍ່ສະພາບອາກາດ, ເຊັ່ນ: polyester ຫຼື fluorocarbon, ສໍາລັບຄວາມຕ້ານທານຂອງການກັດກ່ອນແລະການຕົກແຕ່ງ. ມີຢູ່ໃນຄວາມຫນາຂອງ 1.2-2.0 ມມ, ພວກມັນເຫມາະສໍາລັບອາຄານທີ່ຕ້ອງການການອຸທອນກ່ຽວກັບຄວາມງາມລະດັບສູງ.
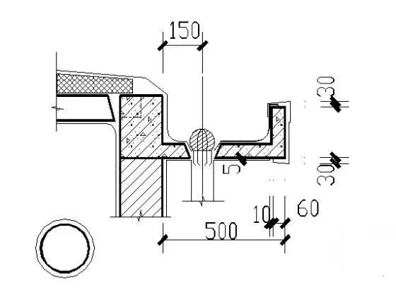
ຮູບແບບໂຄງສ້າງຂອງເຄື່ອງປະດັບເຫຼັກກ້າຕ້ອງມີການປັບຕົວເຂົ້າກັບການອອກແບບມຸງແລະ eaves ອອກແບບ. ປະເພດທົ່ວໄປປະກອບມີຮູບຊົງ U--shaped. ຂັ້ນຕອນການຕິດຕັ້ງມີດັ່ງນີ້:
ຮ່ອງໂຄງສ້າງເຫຼັກຂອງພວກເຮົາໃຊ້ວົງເລັບເຫຼັກຂອງດວງຈັນເພື່ອຮັບປະກັນໃຫ້ພວກມັນປອດໄພຂອງໂຄງສ້າງຂອງໂຄງສ້າງຂອງໂຄງສ້າງຫຼື purlins. ວົງແຫວນວົງເລັບແມ່ນ 600-1000mm ເພື່ອຮັບປະກັນການແຈກຢາຍຄວາມກົດດັນໃນທົ່ວຮ່ອງ.
gutters ສໍາເລັດຮູບໄດ້ຖືກຂະຫນາດກ່ອນແລະເຊື່ອມຕໍ່ຢູ່ໃນເວັບໄຊໂດຍສະຖານທີ່ໂດຍໃຊ້ຕົວເຊື່ອມຕໍ່ຫຼືການເຊື່ອມໂລຫະ. Pealant ແມ່ນມີຄວາມຈໍາເປັນໃນຈຸດເຊື່ອມຕໍ່ລະຫວ່າງ gutter ແລະມຸງມຸງ.
ພວກເຮົາສາມາດຕິດຕັ້ງກະພິບຢູ່ຂ້າງເທິງຫລັງຄາ. ຈຸດຕ່ໍາສຸດຂອງຮ່ອງນ້ໍາຄວນວາງໄວ້ຢູ່ລຸ່ມຫລັງຄາຂອງດາດຟ້າແລະປິດດ້ວຍ sealant. ຂຸມລະບາຍນ້ໍາຄວນໄດ້ຮັບການສະຫນອງຢູ່ດ້ານລຸ່ມຂອງຮ່ອງນ້ໍາ, ຕົ້ນຕໍສໍາລັບການເຊື່ອມຕໍ່ກັບ Rewater Rewater.
ໂຄງສ້າງເຫຼັກໂຄງສ້າງຂອງພວກເຮົາປະກອບມີການຕັດຕາມຂະບວນການແຕ້ມຮູບ, ການກວດກາຜະລິດຕະພັນ, ການກວດກາຜະລິດຕະພັນ, ການຫຸ້ມຫໍ່, ແລະການຂົນສົ່ງ. ເຄື່ອງປະດັບເຫຼັກກ້າຂອງ Liweiyuan ໄດ້ຖືກອອກແບບແລະຕິດຕັ້ງເພື່ອຮັບປະກັນການຕໍ່ຕ້ານ, ລະບາຍນ້ໍາ, ແລະທົນທານ, ຮັບປະກັນການລະບາຍທີ່ດີ.